网站首页
设计案例
FSBB Case
公司团队
FSBB Team
设计理念
FSBB Concept
五觉美学
FSBB News
关于我们
FSBB About
联系方式
FSBB Contact
设计案例 /
FSBB Case
酒店/宾馆/民宿
餐饮/会所/KTV
商场/展厅/售楼处
办公/学校/创意园
住宅/精装房/样板间
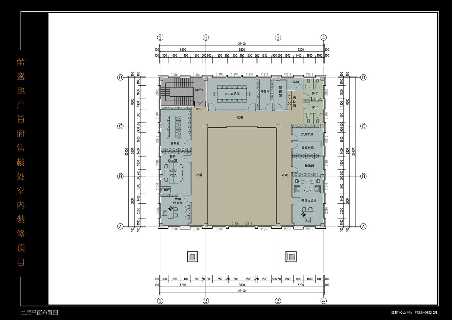
荣盛首府售楼处
所属案例:
商场/展厅/售楼处